Инструкция По Изготовлению Откатных Ворот
- Откатные Ворота С Калиткой
- Откатные Ворота Дорхан
- Ворота Откатные Автоматические
- Яндекс Откатные Ворота На Колесах
- Рекомендации для самостоятельного изготовления откатных ворот. Главная » Инструкции.
- Инструкция для сдвижных ворот из сэндвич панелей ДорХан и сдвижных ворот из профлиста или профнастила.
Объявление о продаже Откатные ворота своими руками. Инструкция в Санкт-Петербурге на Avito. Откатные ворота своими руками. Простая инструкция по изготовлению и чертеж в подарок. Телефоны: +38 (044) 360 54 65; +38 (067) 461 81 90; +38 (095) 357 46 65.. Яма, которая нужна будет для фундамента закладной детали по длине должна быть равной половине воротного проема. Глубина всех приямков должна быть больше чем нормативная глубина промерзания, которая в зависимости от климатического района может иметь глубину 1-1,2м. Очень важно придерживаться этого, потому что в случае, если низ фундамента будет ближе к поверхности, замерзший грунт будет его выдавливать наружу.
Содержание. На сегодняшний день откатные ворота являются самым популярным вариантом. Еще совсем недавно позволить себе такую конструкцию мог далеко не каждый, так как только фурнитура могла стоить как подержанный автомобиль. А вот сейчас стоимость их стала доступнее. Для еще большей экономии можно установить откатные ворота своими руками. Данная конструкция не требует особенного ухода или обслуживания, на нее можно самому установить автоматику. Такие ворота практичные и долговечные.
Необходимые элементы откатных ворот. По большому счету, ответ на вопрос, как сделать откатные ворота, достаточно простой. Для их создания абсолютно не нужны глубокие знания в строительстве или какие-то особенные умения. Достаточно иметь необходимый комплект материалов и следовать рекомендациям специалистов. Для того чтобы нужно иметь много расходных материалов, но самой важной деталью считается фурнитура, которая отвечает за передвижение.
В ее состав входит:. Роликовые каретки или тележки;. Поддерживающий и концевой ролик;. Верхний и нижний улавливатель;.

Откатные Ворота С Калиткой
Заглушки направляющей;. Направляющий рельс 6 см.
Выбирая качественную фурнитуру для конструкции откатных ворот, лучше всего обратиться к проверенным производителям, у которых отличное сочетание цены и качества. Процесс возведения откатных ворот Изготовление откатных ворот происходит поэтапно, а именно:. Подготовка опорных столбов;. Фундамент откатных ворот;.
Откатные Ворота Дорхан
Установка электропроводки под автоматику;. Изготовление;. Чтобы самодельные ворота служили долго, необходимо придерживаться плана работ, и качественно исполнять каждый этап. Подготовка и установка опорных столбов Первый этап является очень важным.
Ворота Откатные Автоматические
Ведь именно на опорные столбы и будет в последующем крепиться данная конструкция. Примечательно, что такой столб может быть изготовлен из различного материала – бетона, кирпича или же дубового бруса. Специалисты рекомендуют бетонировать столб не менее чем на один метр. Для того чтобы бетон схватился, нужно оставить конструкцию на неделю.
Если же самодельные откатные ворота имеют кирпичные или бетонные столбы, то на них необходимо установить по три металлических закладных. Когда все полностью высохнет, можно начинать следующий этап. Фундамент Для работы на данном этапе необходимо использовать швеллер 20 см шириной и арматуру с 12-16 мм сечением, которую нужно нарезать по 1-1,2 метра в длину. Нарезанную арматуру важно приварить к швеллеру с обеих сторон. Потом своими руками нужно сделать яму. Он должна иметь длину, не меньше половины проема предполагаемых ворот. При этом ширина углубления не должна быть менее 40 см, глубина от 1,5 метра.
Очень важно устанавливать швеллер только полками вниз. Когда это устройство расположилось в яме, можно ее заливать бетоном. Особое внимание следует уделить правильной установке швеллера, который должен укладываться строго по уровню. Ведь только так можно обеспечить ровное основание для роликовой тележки.
Таким образом, фундамент для откатных ворот своими руками можно считать готовым. Очень важно дать фундаменту выстоять несколько недель. В строительных нормах рекомендуют 28 дней. Установка электропроводки Изготовление фундамента должно учитывать прокладку электропроводки под автоматику. Для того чтобы своими руками провести эту проводку нужно просмотреть схемы и чертежи откатных ворот. Именно там показаны все способы и методы установки проводки. Подобная схема позволяет быстро и качественно проделать данный этап работы.
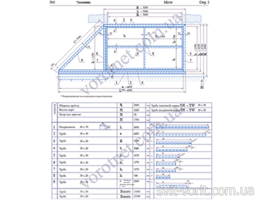
Изготовление Это самый ответственный и сложный этап. Для начала необходимо определиться с материалом для несущей рамы и заняться его заготовкой. В основном откатные ворота изготавливаются из металлопрофиля. Он достаточно простой и удобный в применении. Ворота из такого металлопрофиля надежные и практичные, и могут прослужить долгие годы. Перед непосредственной нарезкой и варкой металлопрофиля нужно сделать предварительный чертеж откатных ворот и указать нужные размеры.
Схема должна состоять из несущей рамы и из внутреннего каркаса, иными словами – обрешетки. Также чертеж должен иметь размеры полотна.Для изготовления рамы в основном используют трубу из металлопрофиля размером 60 х 3 мм. Если таких размеров под рукой нет, то можно также подобрать трубу 60 х 40 мм и 50 х 50 мм. Чертеж обязательно должен иметь точные размеры используемых труб. Для внутреннего каркаса используется профильная труба размером 40 х 20 мм. Также к ней очень легко можно прикрепить полотно с помощью обычных саморезов.
Сделав чертежи будущей конструкции можно перейти к следующим этапам изготовления откатных ворот, а именно к нарезке, сварке и покраске. Завершающий этап изготовления Используя схемы, нужно нарезать трубы необходимого количества. При себе желательно иметь специальную болгарку с зачистным кругом.
Яндекс Откатные Ворота На Колесах
Ее используют для зачистки ржавчины или окалины на трубах. При работе необходимо обязательно воспользоваться защитными очками. Если конструкция откатных ворот будет зашиваться с двух сторон профнастилом, то трубы внутренней обрешетки необходимо разместить посредине. Варить трубы эксперты рекомендуют прихватами, буквально в несколько сантиметров, делая отступ в 30 см. Внизу в несущей раме необходимо установить направляющий рельс из фурнитуры. После этого нужно аккуратно зачистить сварочные швы с помощью болгарки и нанести грунтовку.
Когда слой грунтовки полностью высохнет – можно приступить к покраске. Желательно покрывать раму откатных ворот двумя слоями краски. После того как конструкция полностью высохнет можно приступать к ее зашивке. Для этого достаточно использовать обычные саморезы или заклепки.
Материал может быть абсолютно разным, от металлопрофиля, до обычного дерева. Монтаж Когда уже устройство готово, можно приступить к его непосредственной установке. Следует указать, что данный этап совершенно несложный, но очень кропотливый и требует особенного внимания. Итак, на швеллер, который был залитый в фундаменте, нужно выставить аккуратно своими руками каретки, при этом максимально их раздвинуть.
Накатной ролик откатных ворот имеет размер в 15 см, поэтому и отодвигать его нужно на такое же расстояние. После этого нужно одеть раму откатных ворот непосредственно на роликовые каретки и выставить их по уровню. После такой установки можно слегка приварить платформы кареток к швеллеру. Далее нужно еще раз проверить правильность действий, и только тогда полностью обварить платформу кареток ворот своими руками. Очень важно сделать все правильно, чтобы не было различных перекосов и ворота имели правильное положение в уровне.
Потом можно приваривать и верхний поддерживающий и концевой ролики, верхний и нижний уловитель. Необходимо, чтобы концевой ролик накатывался на нижний уловитель так, чтобы он постоянно разгружал его при закрытии. Таким образом, прекрасные откатные ворота своими руками теперь доступны каждому желающему. Нюансы при установке откатных ворот Многие умельцы, которые решают сделать откатные ворота своими руками, устанавливают роликовые каретки на платформы с приваренными шпильками. Главная цель таких действий – удобство регулирования и легкость их замены в случае поломки. В действительности это совершенно не так. Ведь при неправильной установке придется заново своими руками сверлить швеллер, нарезать резьбу, подгонять под нужный размер и прочее.
Всего каких-то пару миллиметров могут забрать несколько дней постоянной работы, которая в итоге заставит срезать шпильки и приваривать каретки непосредственно к фундаменту. Именно поэтому, лучше всего следовать советам специалистов, и потратить на установку своими руками как можно меньше времени и сил. Таким образом, качественные откатные ворота будут радовать глаз и служить долго.